तकनीकी डेटा पावर लॉक चयन और प्रक्रिया
यदि आप चयन प्रक्रिया और महत्वपूर्ण बिंदु देखना चाहते हैं, तो कृपया नीचे आगे बढ़ें।
यदि आप किसी उत्पाद श्रृंखला को सीमित करना या अस्थायी रूप से चुनना चाहते हैं,
कृपया यहां क्लिक करें।
यदि आपकी उपयोग शर्तें तय हो गई हैं और आप विस्तृत चयन चाहते हैं,
कृपया यहां क्लिक करें।
केई, केई-केपी, केई-एसएस और केई-एलपी श्रृंखला का चयन
1. अधिकतम टॉर्क और थ्रस्ट लोड की जाँच करें
अधिकतम टॉर्क और थ्रस्ट लोड की गणना ट्रांसमिशन क्षमता को सर्विस कारक की जाती है।
*सर्वो मोटर या स्टेपिंग मोटर को जोड़ते समय, प्रत्येक के अधिकतम टॉर्क (पीक टॉर्क) को अधिकतम उत्पन्न टॉर्क (Tmax) के रूप में उपयोग करें।
| एस आई यूनिट |
|---|
|
Tmax = 9550 × H n ・f Tmax = अधिकतम टॉर्क (N・m)
|
| गुरुत्वाकर्षण इकाइयाँ |
|---|
|
Tmax = 974 × H n ・f Tmax = अधिकतम टॉर्क (kgf・m)
|
Pmax = Pax・f
- Pmax: अधिकतम थ्रस्ट लोड kN{kgf}
- पैक्स: थ्रस्ट लोड kN{kgf}
- f: सर्विस कारक
f: सर्विस कारक
| लोड की स्थिति | सर्विस कारक | |
|---|---|---|
| झटके के बिना सुचारू भार | छोटी जड़ता | 1.5~2.5 |
| हल्का झटका भार | जड़त्व के दौरान | 2.0~4.0 |
| उच्च प्रभाव भार | बड़ा जड़त्व | 3.0~5.0 |
जब केवल टॉर्क लगाया जाता है
ऊपर प्राप्त Tmax की तुलना कैटलॉग ट्रांसमिशन टॉर्क Mt से करें।
Mt ≧ Tmax → उपयोग किया जा सकता है.
Mt < Tmax → मॉडल संख्या बढ़ाने या एकाधिक इकाइयों का उपयोग करने पर विचार करें।
जब टॉर्क और थ्रस्ट लोड एक साथ लागू होते हैं
संयुक्त भार M R की गणना की जाती है और प्रेषित टॉर्क M t के साथ तुलना की जाती है।
MR = Tmax2 + (Pmax × d 2 )2
- Tmax: अधिकतम टॉर्क N・m{kgf・m}
- Pmax: अधिकतम थ्रस्ट लोड N{kgf}
- d: शाफ्ट व्यास m
ऊपर गणना की गई M R की तुलना कैटलॉग ट्रांसमिशन टॉर्क Mt से करें।
M t ≧ M R → उपयोग किया जा सकता है.
M t < M R → मॉडल संख्या बढ़ाने या एकाधिक इकाइयों का उपयोग करने पर विचार करें।
*इस श्रृंखला का उपयोग कई इकाइयों के साथ किया जा सकता है। कई इकाइयों का उपयोग करते समय, ट्रांसमिशन टॉर्क निर्धारित करने के लिए Mt को नीचे दी गई तालिका में दिखाए गए गुणक से गुणा करें।
| प्रयुक्त संख्या | 1 | 2 | 3 | 4 |
|---|---|---|---|---|
| बढ़ाई | 1 | 2 | संभव नहीं | संभव नहीं |
2. अक्ष और बॉस पर विचार
(1) सामग्री की मजबूती पर विचार
जब शाफ्ट और बॉस को जोड़ा जाता है, तो उन पर सतही दबाव बहुत अधिक होता है। शाफ्ट और बॉस की ऐसी सामग्री का प्रयोग करें जिसकी मज़बूती निम्नलिखित सूत्र को संतुष्ट करती हो।
σ0.2S≧ 1.2 × P σ0.2B≧ 1.2 × P'
- P: शाफ्ट साइड दबाव MPa{kgf/mm 2}
- P': बॉस साइड प्रेशर MPa{kgf/mm 2}
- σ 0.2S: प्रयुक्त शाफ्ट सामग्री का उपज प्रतिबल MPa{kgf/mm 2}
- σ 0.2B: प्रयुक्त बॉस सामग्री का उपज तनाव MPa {kgf/mm 2}
कृपया स्टील सामग्री शक्ति तालिका देखें, जो प्रतिनिधि स्टील सामग्री के उपज बिंदु मूल्यों को दर्शाता है।
(2) बाहरी हब व्यास पर विचार
कृपया KE श्रृंखला प्रमुख विनिर्देश पृष्ठ देखें।
तालिका में सूचीबद्ध नहीं की गई सामग्रियों के लिए, निम्नलिखित सूत्र का उपयोग करके आवश्यक बाहरी हब व्यास गणना करें।
बाहरी हब व्यास D N ≧ D σ0.2B + K3・P' σ0.2B - K3・P'
- डी एन: बाहरी हब व्यास मिमी
- डी: हब व्यास मिमी
- P': बॉस साइड प्रेशर MPa{kgf/mm 2}
- σ 0.2B: प्रयुक्त बॉस सामग्री का उपज तनाव MPa {kgf/mm 2}
- K3: हब ज्यामिति कारक (कृपया प्रत्येक उत्पाद के लिए प्रमुख विनिर्देश पृष्ठ देखें।)
(3) खोखले शाफ्ट के आंतरिक व्यास पर विचार
निम्नलिखित सूत्र का उपयोग करके खोखले शाफ्ट के आंतरिक व्यास की गणना करें।
खोखले शाफ्ट का आंतरिक व्यास d B ≦ d × σ0.2S - 2・P・K3 σ0.2S
- डी बी: खोखले शाफ्ट का आंतरिक व्यास मिमी
- d: शाफ्ट व्यास मिमी
- P: शाफ्ट साइड दबाव MPa{kgf/mm 2}
- σ0.2S: प्रयुक्त शाफ्ट सामग्री का उपज प्रतिबल MPa{kgf/mm 2}
- K3: हब ज्यामिति कारक (कृपया प्रत्येक उत्पाद के लिए प्रमुख विनिर्देश पृष्ठ देखें।)
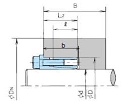
3. रेडियल लोड
जब कोई रेडियल लोड पावर लॉक पर कार्य करता है, जैसे कि बेल्ट ड्राइव में, तो शाफ्ट और हब के किनारों पर रेडियल लोड द्वारा उत्पन्न होने वाले सतही दबाव Prad और P'rad की गणना निम्न सूत्र का उपयोग करके करें। शाफ्ट और हब पर सतही दबावों की तुलना कैटलॉग में सूचीबद्ध सतही दबावों से करें ताकि यह सुनिश्चित हो सके कि वे तालिका 3 में स्वीकार्य मानों के भीतर हैं।
Prad = 1.3 × Pr d × ℓ
P'rad = 1.3 × Pr D × ℓ
- Pr: रेडियल लोड N{kgf}
- ℓ: बॉस और बाहरी रिंग के बीच संपर्क सतह की चौड़ाई मिमी
- d: शाफ्ट व्यास मिमी
- डी: हब व्यास मिमी
- P: शाफ्ट साइड दबाव MPa{kgf/mm 2}
- P': बॉस साइड प्रेशर MPa{kgf/mm 2}
जब ऐसा रेडियल लोड लगाया जाता है, तो आवश्यक बाहरी हब व्यास Dn और खोखले शाफ्ट आंतरिक व्यास dB की गणना करने के लिए, P और P' में क्रमशः Prad और P'rad जोड़ें।
| शृंखला | Prad(P'rad)/P(P') |
|---|---|
| KE | 20% या उससे कम |
