तकनीकी डेटा लिनियर एक्ट्यूएटर पावर सिलेंडर
इको सीरीज सर्वो प्रकार सर्वोमोटर असेंबली प्रक्रिया (ग्राहक द्वारा स्थापना के लिए)
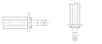
प्रत्यक्ष मोटर कनेक्शन
कृपया एक सर्वो मोटर तैयार करें। (आउटपुट शाफ्ट का उपयोग कीवे के साथ या उसके बिना किया जा सकता है।)
मोटर को इस प्रकार स्थापित करें कि मोटर फ्लैंज पर कपलिंग माउंटिंग छेद ऊपर की ओर हो (केवल 45 और 105 मिमी फ्रेम)।
मोटर शाफ्ट से जंग, धूल या जंग-निरोधक तेल को पोंछ दें।
कपलिंग के क्लैंप बोल्ट को ढीला करें।
कपलिंग केस से प्लग निकालें, इनपुट शाफ्ट को घुमाएं, और कपलिंग क्लैंप बोल्ट के शीर्ष को प्लग होल के साथ संरेखित करें।
*LPES30 के लिए, टॉर्क रिंच को नीचे दिए गए चित्र में दिखाए अनुसार कोण पर डाला जाना चाहिए।
मोटर शाफ्ट को कपलिंग में सुचारू रूप से डालें।
*जब मोटर को घूर्णन की दिशा में घुमाया जाता है, तो क्लैंप बोल्ट के साथ चरण स्थानांतरित हो सकता है।
ध्यान रखें कि मोटर शाफ्ट को किसी कोण पर न डालें।
स्पिगोट भाग को पूरी तरह से डालने के बाद, इसे मोटर माउंटिंग बोल्ट के साथ स्थापित करें।
युग्मन के क्लैंप बोल्ट को निर्दिष्ट कसने वाले टॉर्क तक कसने के लिए टॉर्क रिंच का उपयोग करें।
हटाए गए प्लग को कपलिंग केस में जोड़ें।
*कृपया विवरण के लिए निर्देश पुस्तिका देखें।
| मॉडल संख्या | युग्मन बोल्ट का आकार |
आघूर्ण कसाव N・m{kgf・m} |
एल आयाम मिमी |
|---|---|---|---|
| LPES15 | M2 | 0.5{0.04} | 30 |
| LPES30 | M2.5 | 1.0{0.10} | 40 |
| LPES150 | M4 | 3.8{0.39} | 60 |
| LPES300 | 70 | ||
| LPES1500 | M6 | 12{1.22} | 90 |
सटीक ग्रहीय रिड्यूसर के साथ
1. जब मोटर शाफ्ट गोल हो
रिड्यूसर को इस प्रकार स्थापित करें कि मोटर माउंटिंग सतह शीर्ष पर हो।
मोटर शाफ्ट से जंग, धूल या जंग-निरोधक तेल को पोंछ दें।
एडाप्टर से प्लग निकालें और बोल्ट हेड को प्लग होल के साथ संरेखित करने के लिए इनपुट शाफ्ट को घुमाएं।
यह जांचने के लिए कि सेट बोल्ट ढीला है, हेक्स रिंच या इसी तरह के उपकरण का उपयोग करें।
मोटर शाफ्ट को इनपुट शाफ्ट के छेद में आसानी से डालें। इस समय, ध्यान रखें कि मोटर शाफ्ट को किसी कोण पर न डालें, क्योंकि इससे यह शाफ्ट के छेद से टकरा सकता है और सही तरीके से इंस्टालेशन नहीं हो पाएगा।
स्पिगोट को पूरी तरह से डालने के बाद, मोटर को उपयुक्त कसने वाले टॉर्क के साथ एडाप्टर में सुरक्षित करें।
इनपुट शाफ्ट पर लगे सेट बोल्टों को नीचे दी गई तालिका में दिखाए गए कसने वाले टॉर्क तक कसने के लिए टॉर्क रिंच या किसी समान उपकरण का उपयोग करें। इस समय, कृपया ध्यान रखें कि उन्हें निर्दिष्ट कसने वाले टॉर्क से कम न कसें, क्योंकि इससे सेट बोल्ट ढीले होने के कारण मोटर शाफ्ट के फिसलने जैसी खराबी हो सकती है। सेट बोल्टों पर लोक्टाइट जैसे ढीलेपन निवारक का प्रयोग न करें। इससे उचित कसने वाला टॉर्क प्राप्त नहीं हो पाएगा और परिणामस्वरूप कसाव अपर्याप्त होगा।
प्लग लगाएँ: इससे मोटर की स्थापना पूरी हो जाती है।
क्लैंप बोल्ट को कसना
यदि कोई अप्रत्याशित प्रभाव पड़ता है, तो संभव है कि क्लैंप मेटिंग वाला हिस्सा फिसल जाए। कृपया लिफ्टिंग ड्राइव आदि के लिए एक अलग सुरक्षा तंत्र लगाने पर विचार करें।
क्लैंप बोल्ट कसने की टॉर्क तालिका
| बोल्ट का आकार | M3 | M4 | M5 | M6 | M8 | M10 |
|---|---|---|---|---|---|---|
| आघूर्ण कसाव N・m{kgf・m} |
1.9 {0.18} |
4.3 {0.44} |
8.7 {0.89} |
15 {1.50} |
36 {3.70} |
71 {7.20} |
*बोल्ट कसने का टॉर्क उपरोक्त मान x 1.0 से 1.2 की सीमा के भीतर होना चाहिए।
मोटर माउंटिंग बोल्ट कसने की टॉर्क तालिका
| बोल्ट का आकार | M3 | M4 | M5 | M6 | M8 |
|---|---|---|---|---|---|
| आघूर्ण कसाव N・m{kgf・m} |
1.1 {0.11} |
2.5 {0.26} |
5.1 {0.52} |
8.7 {0.89} |
21 {2.10} |
*बोल्ट कसने का टॉर्क उपरोक्त मान x 1.0 से 1.2 की सीमा के भीतर होना चाहिए।
2. चाबी से मोटर लगाना
चाबी वाले मोटर शाफ्ट को चाबी निकालकर गोल शाफ्ट की तरह ही क्लैंप प्रकार के रूप में इस्तेमाल किया जा सकता है।
मोटर शाफ्ट कीवे (डी कट), प्रत्येक स्लिट, और बोल्ट को दाईं ओर चित्र में दिखाए गए स्थानों पर सेट करें।
अन्य भागों के लिए, कृपया गोल शाफ्ट के समान प्रक्रिया का उपयोग करके रिड्यूसर से जोड़ें।
चयन करते समय ध्यान देने योग्य महत्वपूर्ण बिंदु (इको सीरीज, सर्वो प्रकार)
- ・इस सिलेंडर में घूर्णन निरोधक तंत्र नहीं है। थ्रस्ट के कारण रॉड में घूर्णन बल उत्पन्न होता है, इसलिए मेटिंग डिवाइस की तरफ घूर्णन को रोकने के उपाय अवश्य करें।
अधिकतम प्रणोद पर छड़ में उत्पन्न घूर्णन बल नीचे दी गई तालिका में दर्शाया गया है।मॉडल संख्या LPES15 LPES30 LPES150 LPES300 LPES1500 रॉड घूर्णन बल
N・m{kgf・m}0.16{0.016} 0.32{0.031} 1.60{0.16} 3.19{0.33} 26.6{2.72} - - इस सिलेंडर में सिलेंडर बॉडी में लोड रिटेंशन मैकेनिज्म नहीं बना है। अगर सिलेंडर के रुकने या उत्पाद के खराब होने पर किसी खतरनाक स्थिति की आशंका हो, तो लोड को बनाए रखने के लिए इलेक्ट्रोमैग्नेटिक ब्रेक वाली सर्वो मोटर का इस्तेमाल करें, या बाहरी ब्रेक मैकेनिज्म लगाएँ। यही बात तब भी लागू होती है जब लिफ्टिंग डिवाइस में या क्षैतिज उपयोग के दौरान स्थितिगत विचलन की समस्या हो।
- ・ पावर सिलेंडर घर के अंदर इस्तेमाल के लिए डिज़ाइन किए गए हैं। जंग जैसी समस्याओं से बचने के लिए, कृपया इन्हें अच्छे इनडोर वातावरण में रखें। नमी से सावधान रहें। अचानक तापमान परिवर्तन वाली जगह पर इन्हें लगाने से संघनन हो सकता है, जिससे खराबी या जंग लग सकती है, इसलिए कृपया सावधान रहें।
- - संक्षारक वातावरण में भंडारण या उपयोग न करें। साथ ही, ज्वलनशील वातावरण में भी उपयोग न करें।
- - उत्पाद का उपयोग सीलबंद कंटेनर या अन्य स्थान पर न करें जहां गर्मी अपव्यय की उम्मीद न हो, क्योंकि इससे खराबी हो सकती है।
स्थापना सावधानियाँ (इको सीरीज़, सर्वो प्रकार)
- - मुख्य बॉडी को स्थापित करने के लिए ट्रूनियन माउंट या फ्लैंज माउंट (केवल LPES150 और उससे नीचे के लिए उपलब्ध) का उपयोग करें।
यदि उत्पाद स्विंग गति के अधीन होगा, सिरा संयोजन आकार या U-आकार का सिरा संयोजन चुनें। यदि पार्श्व भार लागू होता है, तो प्रत्यक्ष पार्श्व भार या झुकने वाले क्षणों को रोकने के लिए एक गाइड स्थापित करें। - - ट्रूनियन माउंट के साथ स्थापित करते समय, इसे क्षैतिज या लंबवत रूप से स्थापित किया जा सकता है।
- - फ्लैंज माउंट के साथ स्थापित करते समय, इसे लंबवत स्थापित करें (दाईं ओर आरेख देखें)।
*LPES300 या उच्चतर प्रकार के फ्लैंज माउंट के लिए, कृपया हमसे संपर्क करें।
*यदि बेलो लगे हुए हैं तो फ्लैंज माउंटिंग संभव नहीं है। - - यदि आप सिलेंडर को बिना किसी हिलती-डुलती गति के स्थिर स्थिति में उपयोग कर रहे हैं, तो कृपया (1) फ्लैंज माउंट या (2) ट्रूनियन माउंट + फ़ुट माउंट चुनें। क्षैतिज और ऊर्ध्वाधर माउंटिंग भी संभव है (केवल □45 फ़्रेम)।
- -लंबी यात्रा लंबाई और क्षैतिज स्थिति में उपयोग करते समय, कृपया फ्रेम के निचले सिरे को अलग से सहारा दें जैसा कि नीचे दिए गए चित्र में दिखाया गया है।
इस मामले में, फ्रेम और समर्थन आधार को सुरक्षित न करें।

फ़्रेम अंत समर्थन
(ठीक नहीं किया जा सकता)
ट्रूनियन माउंट
फ्लैंज माउंट
(1) फ्लैंज माउंट
(2) ट्रूनियन माउंट + फुट माउंट
उपयोग के लिए सावधानियां (इको सीरीज सर्वो प्रकार)
- ・इस सिलेंडर में सिलेंडर बॉडी में कोई अधिभार संरक्षण तंत्र नहीं है, इसलिए कृपया सर्वो ड्राइवर (सर्वो एम्पलीफायर) में अधिभार, अति-धारा और अति-वोल्टेज से सुरक्षा प्रदान करें। साथ ही, कृपया सुनिश्चित करें कि पावर सिलेंडर से जुड़ा उपकरण सर्वो मोटर के अधिकतम टॉर्क को झेलने के लिए पर्याप्त मज़बूत हो।
- ・इस सिलेंडर में इसकी संरचना के कारण मैनुअल ऑपरेशन शाफ्ट नहीं है, इसलिए कृपया सर्वो ड्राइवर (सर्वो एम्पलीफायर) का उपयोग करके धीमी गति से सिलेंडर की स्थिति को समायोजित करें।
- - इस सिलेंडर के स्क्रू शाफ्ट को शिपिंग से पहले डेफ्ने एपोनेक्स एसआर नंबर 2 के साथ लेपित किया जाता है, लेकिन नियमित रूप से ग्रीसिंग की आवश्यकता होती है।
कृपया ग्रीस रिफिल चक्र के लिए दाईं ओर दी गई तालिका देखें।
प्रति 100 मिमी स्ट्रोक पर 10 से 15 ग्राम ग्रीस लगाया जाना चाहिए।
हम रखरखाव ग्रीस के रूप में JWGS100G (अलग से बेचा जाता है) भी प्रदान करते हैं।
(कृपया यहां देखें.)*तेल फिल्म को टूटने से बचाने के लिए स्नेहन चक्र के अनुसार रॉड की बाहरी सतह पर ग्रीस लगाएं।
स्क्रू के समान ही ग्रीस का प्रयोग करें।*कृपया अपने उपयोग की स्थिति के आधार पर स्नेहन चक्र निर्धारित करें।
बार - बार इस्तेमाल ग्रीस चक्र 1001 चक्कर/दिन या उससे अधिक हर 1 से 3 महीने में 501-1000 चक्कर/दिन हर 3 से 6 महीने में 101-500 चक्कर/दिन हर 6 महीने से 1 वर्ष तक ~100 चक्कर/दिन या उससे कम हर 1 से 1.5 साल में
लिनी-पावर जैक और पावर सिलेंडर के रखरखाव के लिए आदर्श!
(100 ग्राम शामिल)
形番:JWGS100G
