टफ़रोलर विकल्प सूची
*सभी उत्पाद ऑर्डर पर बनाये जाते हैं।
लगाव
■विस्तारित साइड प्लेट प्रकार

मैनुअल दिशा परिवर्तन इंटरकनेक्शन
- यह एक वेल्डेड उत्पाद है और इसे पुनः जोड़ा नहीं जा सकता।
[बड़ा करने के लिए क्लिक करें]
| लागू मुख्य बॉडी मॉडल संख्या | L mm |
Z mm |
द्रव्यमान किलोग्राम |
|---|---|---|---|
| TUF-J | 170 | 17 | 3 |
| TUF-6 | 230 | 17 | 6 |
| TUF12 | 300 | 17 | 12 |
| TUF25 | 400 | 22 | 33 |
| TUF1P | 230 | 17 | 2.4 |
| TUF2P | 300 | 17 | 6 |
| TUF4P | 400 | 22 | 19 |
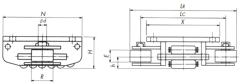
■क्षैतिज गाइड रोलर्स के साथ

जब थ्रस्ट लोड पार्श्व कंपन को रोकने के लिए कार्य करता है
- कुछ प्रकार ऐसे होते हैं जिन्हें एक तरफ से जोड़ा जा सकता है और कुछ ऐसे होते हैं जिन्हें दोनों तरफ से जोड़ा जा सकता है।
- यह एक वेल्डेड उत्पाद है और इसे पुनः जोड़ा नहीं जा सकता।
[बड़ा करने के लिए क्लिक करें]
| लागू मुख्य बॉडी मॉडल संख्या | N | X | H | R | E | d | h | LC | LR |
|---|---|---|---|---|---|---|---|---|---|
| TUF-J | 120 | 135 | 51.1 | 38 | 16 | 14.5 | 20 | 142 | 180 |
| TUF6 | 160 | 150 | 66 | 44.5 | 23 | 22 | 27 | 174 | 218 |
| TUF12 | 210 | 200 | 85 | 60 | 38 | 22 | 40 | 220 | 280 |
| TUF25 | 300 | 250 | 130 | 75 | 62 | 31.5 | 60 | 285 | 360 |
■स्पाइक्स के साथ

लकड़ी के पैलेट के लिए
[बड़ा करने के लिए क्लिक करें]
| लागू मुख्य बॉडी मॉडल संख्या | R | S |
|---|---|---|
| TUF-J | 12 | 7 |
| TUF6 | 14 | 8 |
| TUF12 | 19 | 10.5 |
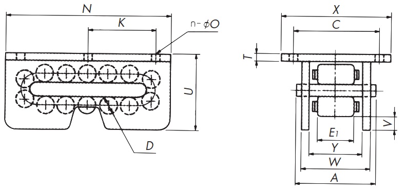
■ स्कर्ट का प्रकार

जब थ्रस्ट लोड पार्श्व कंपन को रोकने के लिए कार्य करता है
- कुछ प्रकार ऐसे होते हैं जिन्हें एक तरफ से जोड़ा जा सकता है और कुछ ऐसे होते हैं जिन्हें दोनों तरफ से जोड़ा जा सकता है।
- *एक तरफ़ा स्कर्ट आम है।
- यह एक वेल्डेड उत्पाद है और इसे पुनः जोड़ा नहीं जा सकता।
[बड़ा करने के लिए क्लिक करें]
| लागू मुख्य बॉडी मॉडल संख्या | U mm |
V mm |
Y mm |
द्रव्यमान किलोग्राम (दोनों तरफ स्कर्ट के साथ) |
|---|---|---|---|---|
| TUF-J | 65 | 14.0 | 56.5 | 3 |
| TUF6 | 85 | 19.2 | 72 | 6.3 |
| TUF12 | 112 | 27.0 | 100 | 14.5 |
| TUF25 | 166 | 36.0 | 130 | 37.8 |
■रबर पैड के साथ

लकड़ी के पैलेट के लिए
- यह वजन को समान रूप से वितरित करता है और असमान सड़क सतहों पर फिसलन को रोकने के लिए उपयुक्त है।
■स्क्रैपर के साथ

जब रेल की सतह पर गंदगी हो
- यह एक वेल्डेड उत्पाद है और इसे पुनः जोड़ा नहीं जा सकता।
विकल्प
■हैंडल

मार्गदर्शन
- मुख्य भाग जो जोड़ा जा सकता है वह विस्तारित साइड प्लेट प्रकार का है।
[बड़ा करने के लिए क्लिक करें]
■ टर्नटेबल

दिशा बदलने के लिए
- इसे बोल्ट के साथ टफ़रोलर की शीर्ष प्लेट से जोड़ा जा सकता है।
[बड़ा करने के लिए क्लिक करें]
| लागू मुख्य बॉडी मॉडल संख्या | P mm |
d mm |
Q mm |
t mm |
आलंबन बोल्ट | द्रव्यमान किलोग्राम |
|---|---|---|---|---|---|---|
| TUF-J | 90 | 7 | 10 | 6 | M8 | 1.3 |
| TUF1P, TUF6 | 120 | 10 | 13 | 6 | M10 | 2.4 |
| TUF2P, TUF12 | 160 | 14 | 13 | 9 | M12 | 5.3 |
| TUF4P, TUF25 | 200 | 17.5 | 17 | 12 | M16 | 12.1 |

